制造业知识分享、信息发布平台-兴盛制造网 Email: 206027815@qq.com

六相微机继电保护测试仪差动保护试验接线方法

分类: 其他 浏览量: 留言数: 42754

六相微机继电保护测试仪差动保护试验接线方法


附录2的接线图画出了保护装置内部的控制回路逻辑结构图,但很多装置的接线图纸中并没有画出逻辑结构图。这给现场试验时的接线,尤其是寻找开入量的相应端子带来了一定麻烦。其实,只要掌握接线规律,同样是非常简单的事情。下面以某差动保护装置原理接线图为例进行分析。参见右图:

]SS4YR(GTB2$E8QINMW[KJU.png


1装置端子表:

端子

端子说明

端子

端子说明

端子

端子说明

5

1#差动CT电流A

15

2#差动CT电流C

28

遥信输入4

6

1#差动CT电流A

16

2#差动CT电流C

29

遥信输入地

7

1#差动CT电流B

18

下行通信GND

30

联跳继电器出口

8

1#差动CT电流B

19

下行通信RX

31

联跳继电器出口

9

1#差动CT电流C

20

下行通信TX

34

保护动作继电器出口

10

1#差动CT电流C

23

主变本体重瓦斯遥信

35

接手动跳闸回路

11

2#差动CT电流A

24

主变本体轻瓦斯遥信

36

接短路器合闸回路

12

2#差动CT电流A

25

遥信输入1

37

接短路器跳闸回路

13

2#差动CT电流B

26

遥信输入2

39

电源负极

14

2#差动CT电流B

27

遥信输入3

40

电源正极




2 一般接线

采用继保-KDWJ-6测试仪,IAIBIC分别接高压侧111315端子,将121416三个端子短接,然后将其接至测试仪的IN;测试仪IaIbIc分别接低压侧579端子,将6810三个端子短接,然后将其接至测试仪的In4039端子分别接直流电源的正、负极。

3 开入量接线

接线误区:

图中的3736端子很容易被误认为是保护装置的跳、合闸线圈的辅助接点,因而把测试仪的开入A接至37,而开入R接至36。实际上,这两个端子是保护至现场断路器的跳、合闸出口。图中的TQHC是断路器的跳、合闸线圈,而不是保护装置内部的跳、合闸线圈。图中的1DL也是断路器的辅助接点,而不是保护装置内部的跳、合闸线圈的辅助接点。

当然,这种接法也可以做试验,但它要求试验时断路器参与试验时的闭合与断开操作,这样对断路器使用寿命有影响,同时,还要求一次线路停运,否则会造成线路误停电的重大事故。所以,我们不提倡这样的接线方法!

接线剖析:

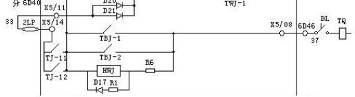
仔细对照装置端子表和“附录1"中的接线图就会发现,34端子是“保护动作继电器出口",并且34端子的旁边就是“差动跳2LP",即差动保护跳闸的硬压板,因此,这才是保护装置内部的跳闸线圈的辅助接点的出线端子。它相当于“附录1"例图中的X5/14接点。如下图所示(只选取了附录1中的例图的一部分):

G@8DL8AN9Y2Y56)%X698~OB.png

对照上图,我们在回到上面接线误区"中提到的内容。刚才提到的TQ,就相当于上图中的TQ;刚才提到的1DL,就相当于上图中的DL;刚才提到的37端子,就相当于上图中的X5/08接点。所以是不正确的。

正确的接线方法是千方百计寻找到上图中TJ-11TJ-12接点的引出端子。而通过分析对照,确定34端子即是所需的端子。

正确的接线:

测试仪的开入A34端子,开入公共端COM(或+KM)接直流电源的正极性端40端子。为防止试验时对保护装置的操作导致现场断路器的误动作,试验时请将保护跳闸出口硬压板打开。如本例图中,应打开差动跳2LP"压板。

本文地址: https://www.xsyiq.com/42754.html
网站内容如侵犯了您的权益,请联系我们删除。

标签: 上一篇: 下一篇: